• TEL: 0792 130 533 (日本語) / 0937 822 880 (ベトナム語)
  • ホーチミン在住者向け運転免許証取得&書換え代行&更新代行/ベトナム不動産の格安現地業者投資

 ホーチミン市8区に2年前から計画されていたコンドミニアム”Dream Home Riverside”ですが、売り出し直後に政府の方針により建築許可が得られずに建設が中断されていましたが、2020年末に許可がようやく下りて基礎工事が開始されました。この政府の方針転換は他の市内にある建築予定の全マンションが受けて永らく建設が開始されませんでした。このDream Home Riversideもその一つで、売り出し後に購入手続きをした投資家及び購入者は、25%の前金を支払ったのちに約2年間放置されてしまいましたが、ようやく2020年12月から基礎工の開始が始まり正契約に至りました。

外国人向け不動産物件購入・賃貸・契約サポートサービス

 このDream Home Riversideに先駆けて、2017年に東京新宿区の株式会社THEグローバル社の連結子会社である株式会社グローバル・エルシードがベトナム子会社グローバル・エルシード・ホーチミンを設立し、同社はベトナム地場Dream Homeと共同契約し、ホーチミン市8区でコンドミニアム開発・分譲事業Dream Home Palace Projectに共同事業形式で参画しました。この当時はまだグローバル・エルシード・ホーチミンはDream Home Riversideの事業には参加していませんでしたが、担当者の話によると、Dream Home Palace Project 終了後に参加する可能性もあると述べていました。(2020年12月現在、まだDream Home Palace Projectは終了していません)

 ここ最近、ホーチミン市内のマンション投資はトラブルが多く発生しており、投資家にとってはこのDream Home Riverside もかなり不安でしたが、基礎工事が始まって胸をなでおろしているところです。当初の売り出し価格は最近のコンドミニアムに比べるとかなり安価でしたが、基礎工事再開・正契約締結後の転売価格はそれなりの値段になったようです。しかし、まだまだ外国人にとっては安価ですのでかなりお買い得だと思います。(実は私も投資しました。外国人も買えます。)

外国人向け不動産物件購入・賃貸・契約サポートサービス

以下はDream Home Riversideの広告用イメージ写真です。

01.jpg

Dream Home Riverside HCMC dist.8, 外観

01_2.jpg

Dream Home Riverside HCMC dist.8, 外観

02.jpg

Dream Home Riverside HCMC dist.8

02_2.jpg

Dream Home Riverside HCMC dist.8

03.jpg

Dream Home Riverside HCMC dist.8, 公園

03_2.jpg

Dream Home Riverside HCMC dist.8, スイミングプール

01.jpg

Dream Home Riverside HCMC dist.8, 部屋

02.jpg

Dream Home Riverside HCMC dist.8, 部屋

03.jpg

Dream Home Riverside HCMC dist.8, 部屋

04.jpg

Dream Home Riverside HCMC dist.8, 部屋

05.jpg

Dream Home Riverside HCMC dist.8, 部屋

06.jpg

Dream Home Riverside HCMC dist.8, セキュリティー

以下は、2020年12月現在の周辺の状況です。基礎工事は始まっています。

01.jpg

Dream Home Riverside HCMC dist.8, 現場

01_2.jpg

Dream Home Riverside HCMC dist.8, Nguyen Van Linh 通りから。写真左奥はDream Home Palace、2020年12月現在まだ終わってません。

02.jpg

Dream Home Riverside HCMC dist.8, 現場外の囲い

02_2.jpg

Dream Home Riverside HCMC dist.8, 現場外の囲い

03.jpg

Dream Home Riverside HCMC dist.8, 外の面した通り

03_2.jpg

Dream Home Riverside HCMC dist.8, 外の面した通り

 2020年12月から転売と残っている部屋の販売が再開されました。そこで、ショウルームに訪れてみました。場所はDream Home Riverside のすぐ隣にあります。今現在多くの不動産業者が興味のあるお客さんに説明・勧誘しています。一度ほとんど完売した後の、2回目の販売ですので、なかなか気に入ったところを探せないかもしれませんが、旧正月テト前は現金が必要な投資家が安値で売り出す可能性が高いので注目です。

01.jpg

Dream Home Riverside HCMC dist.8, ショウルーム昼の外観。不動産業者と事前に約束してここで会いますが、恐らくアポなしでも大丈夫です。

01_2.jpg

Dream Home Riverside HCMC dist.8, ショウルーム夜の外観。夜は訪問者がいなくなると締まります。できれば17時前の訪問をお勧めします。

02.jpg

Dream Home Riverside HCMC dist.8, ミニチュア

02_2.jpg

Dream Home Riverside HCMC dist.8, ミニチュア。不動産業者から説明を受ける参加者。

03.jpg

Dream Home Riverside HCMC dist.8, ミニチュア。不動産業者から説明を受ける参加者。

03_2.jpg

Dream Home Riverside HCMC dist.8, 周辺の地図

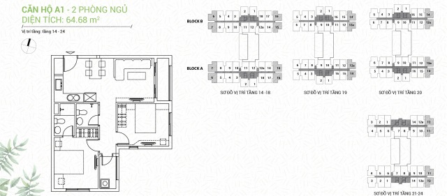
 部屋の間取りは2寝室、3寝室があり、全部で7種類あります。

CĂN HỘ A: 3寝室, 75.12m2
CĂN HỘ A1: 2寝室, 64.68m2
CĂN HỘ A2: 2寝室, 64.68m2
CĂN HỘ B: 2寝室, 55.60m2
CĂN HỘ C: 2寝室, 56.83m2
CĂN HỘ D: 2寝室, 62.37m2
CĂN HỘ D1: 2寝室, 69.00m2

外国人向け不動産物件購入・賃貸・契約サポートサービス

CanHo-A.jpg

CĂN HỘ A: 3寝室, 75.12m^2

CanHo-A1.jpg

CĂN HỘ A1: 2寝室, 64.68m^2

CanHo-A2.jpg

CĂN HỘ A2: 2寝室, 64.68m^2

CanHo-B.jpg

CĂN HỘ B: 2寝室, 55.60m^2

CanHo-C.jpg

CĂN HỘ C: 2寝室, 56.83m^2

CanHo-D.jpg

CĂN HỘ D: 2寝室, 62.37m^2

CanHo-D1.jpg

CĂN HỘ D1: 2寝室, 69.00m^2

 最後に、ショウルームにあるモデルルームの動画を撮影したのでこれを紹介します。モデルルームはCĂN HỘ -A(3寝室, 75.12m2)とCĂN HỘ -C(2寝室, 56.83m2)、CĂN HỘ -D(2寝室, 62.37m2)の3つがありました。

 もしご興味がある場合は、ご連絡ください。契約から購入までサポートできます。さらに、弊社でも1部屋ありますのでこの部屋を気に入っていただければ名義変更及び売買契約のサポートをいたします。

外国人向け不動産物件購入・賃貸・契約サポートサービス


コメントを残す

メールアドレスが公開されることはありません。 が付いている欄は必須項目です